
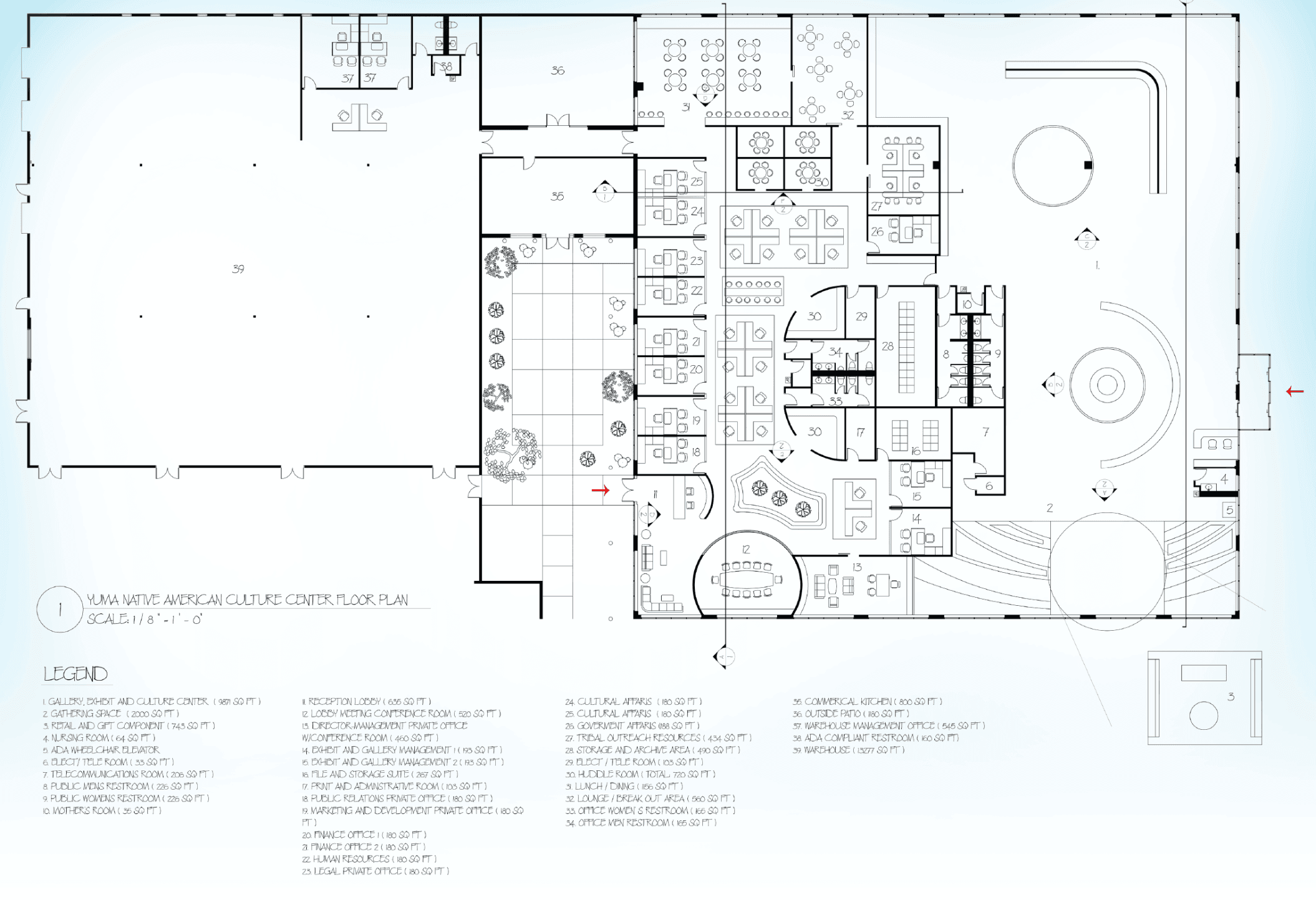
Yuma - Native American Cultural Center
This project envisions the Yuma Native American Cultural Center in Northern Nevada as a multifunctional space for cultural exploration, research, and community support, combining gallery and exhibition design with sensory-driven aesthetics and collaborative work environments. Serving both as an administrative hub for the Yuma Tribal communities and as a historical and art center, the design reflects the meaning of “Yuma”—“people of the river”—through the use of traditional colors such as blue, green, and brown, calming open office spaces, and nature-inspired elements like plants and river imagery. Natural and organic materials, traditional furnishings, patterned wall treatments, and weather imagery integrated into the ceiling further express Yuma cultural beliefs and heritage, creating an immersive environment that supports cultural exchange, education, and community engagement.









