
The Magic City
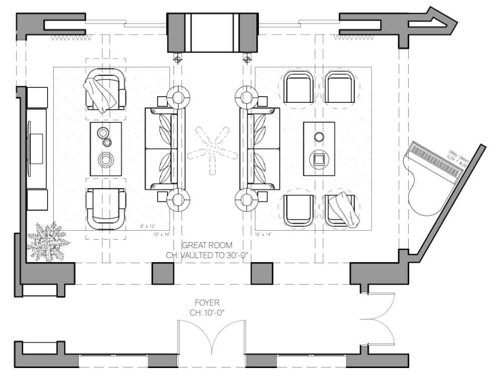
This portfolio presents a series of high-end residential designs set against the dynamic backdrop of Miami. The collection explores the intersection of monumental architectural forms and effortless tropical luxury. From grand neoclassical estates to sleek waterfront retreats, our design philosophy is centered on the seamless transition between indoor opulence and the vibrant outdoor environment. Design Pillars Luminous Transparency To honor the Miami sun, these designs utilize expansive floor-to-ceiling glass systems that invite panoramic views of the coast and lush landscapes into the living space. Black-framed glazing serves as a crisp, modern lens, transforming natural light into a primary design element. Neoclassical Grandeur Redefined In our grandest interior concepts, we celebrate traditional craftsmanship through soaring arched hallways and double-height ceilings. Hand-carved stone fireplaces and tiered crystal chandeliers establish a formal order that is both historic in feel and modern in execution. Tactile Modernism The material palette is a study in contrasts: rich, warm timbers and caramel leathers meet the coolness of natural marble and brushed metals. Whether through exposed ceiling beams or sculptural lighting fixtures, every surface is curated to provide a multi-sensory experience of comfort. The Art of the Sanctuary Moving beyond pure aesthetics, we design for the "Miami Lifestyle"—creating spaces that serve as private sanctuaries for both grand entertaining and quiet contemplation. Every living room and master suite is engineered to be a "vessel for light," reflecting the serenity of the nearby horizon. Digital Craftsmanship These renderings showcase a mastery of 3D light simulation and material physics. By accurately modeling the refraction of light through crystal and the grain of natural wood, we provide clients with a tangible, high-fidelity vision of their future home long before groundbreaking.






