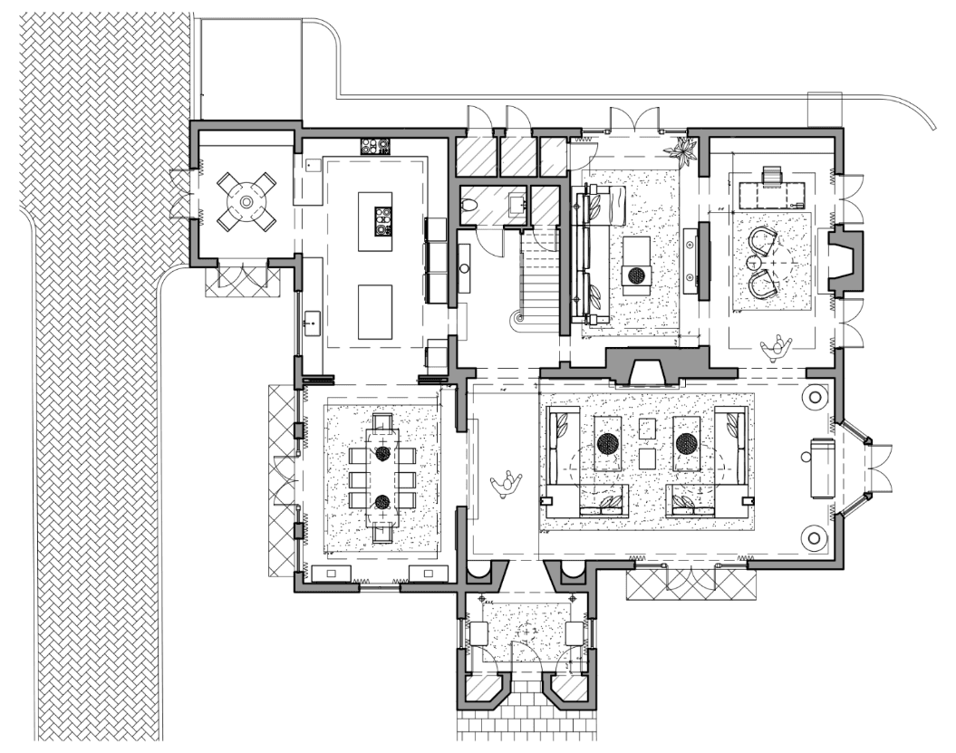
Residence Coconut Grove

Residence Coconut Grove

Florida, USA
2020

Interior Design

Image 5
Image 10
Image 11
Image 6
Image 4
Image 8
Image 7
Image 12
Image 9
Image 2