
Narrative Luxury Refined Heritage
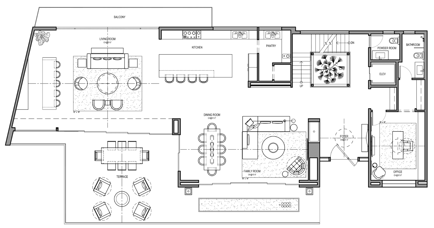
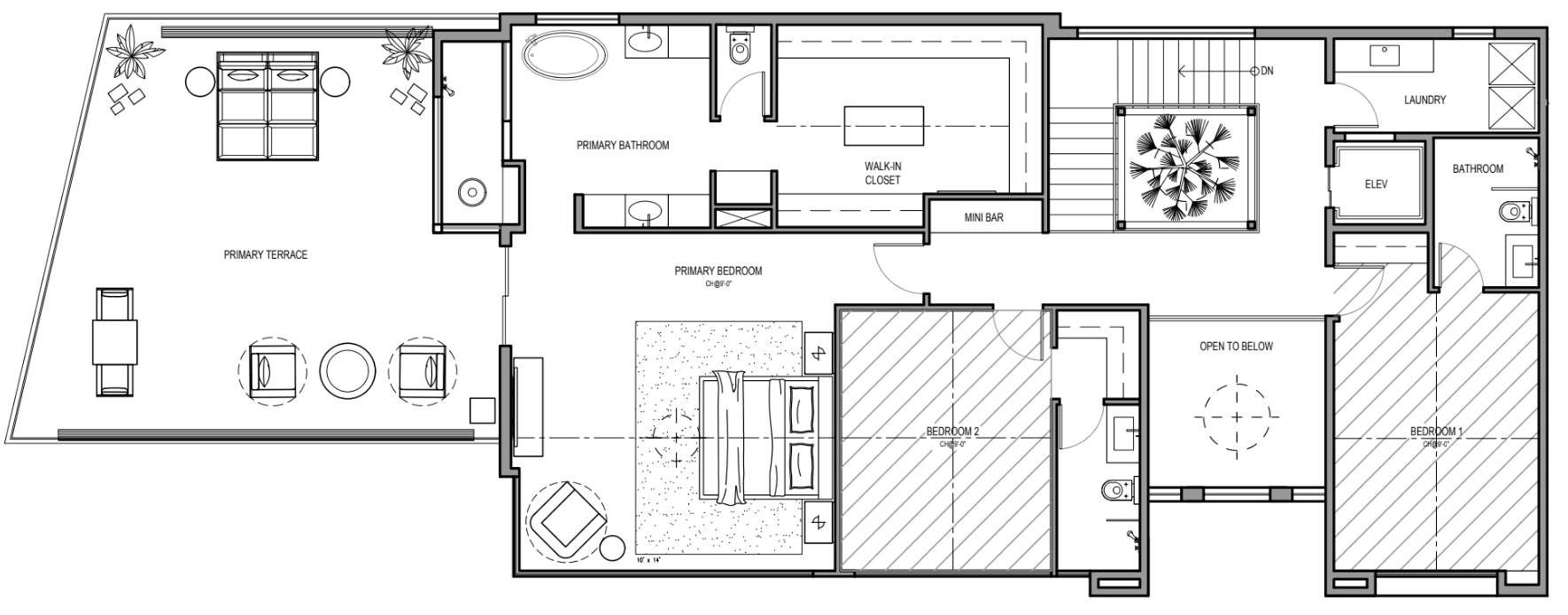
This portfolio represents a sophisticated exploration of "Narrative Luxury". The work functions as a profound dialogue between Primal Minimalism and Contemporary Classicism, constructing multi-dimensional environments where the raw pulse of nature meets the echoes of historical grandeur. 1. Modern Avant-Garde: Echoes of the Earth In these spaces, the design utilizes high-contrast natural elements to bridge the gap between outdoor wilderness and indoor sanctuary: Material Synergy: Rough-hewn natural stone accent walls are juxtaposed with precision-engineered linear fireplaces, grounding the room in organic texture while maintaining a sleek, modern edge. Sculptural Living: Large-scale, surrealist facial sculptures serve as silent anchors for the room, transforming the living area into a meditative art gallery. Organic Geometry: Custom furniture, such as live-edge wood coffee tables, celebrates the authentic imperfections of nature, softening the architectural rigidity of the modern frame. 2. Neo-Classicism: Curating the Contemporary Antique When engaging with classical heritage, the design avoids mere imitation, opting instead for a bold deconstruction of traditional aesthetics: Architectural Poise: Spaces are defined by rigorous axial symmetry, intricate ceiling coffers, and tiered crystal chandeliers that establish an atmosphere of timeless elegance. Subversive Curation: The "Golden Era" Series: Classical portraits are reimagined with bold gold "vandalism" or graffiti-style strokes, symbolizing the liberation of history through a modern lens. The "Basilica" Diptych: Hazy, impressionistic renderings of monumental domes provide a deep narrative layer, blurring the lines between structural reality and atmospheric dreamscapes. Luminous Palette: A refined spectrum of alabaster, cream, and brushed gold interacts with natural light from expansive French doors, creating a visual texture reminiscent of a classical oil painting. 3. The Seamless Interface of Function and Landscape Dissolving Boundaries: Expansive glass walls invite dramatic silhouettes or lush greenery to act as "living materials" within the design. The Social Core: Features such as integrated glass-fronted wine displays and open-concept dining areas balance the needs of high-tier social hosting with a curated display of the inhabitant's lifestyle.






