
Spatial Narratives
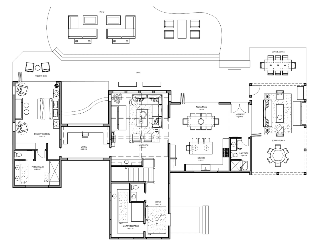
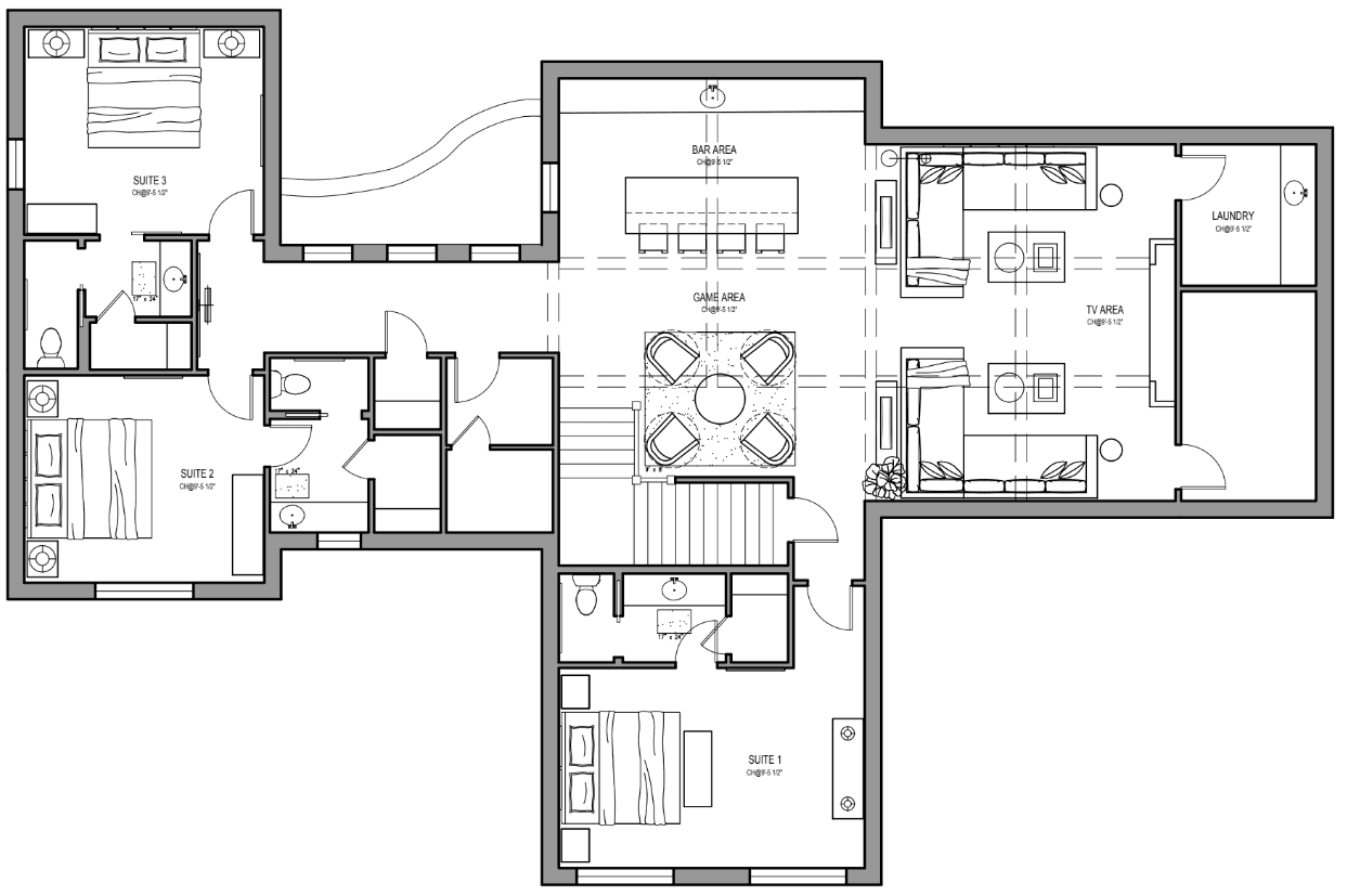
Synthesis of Classical Grandeur and Modern Serenity | 古典宏大与现代宁静的综合体 Overview // 项目概述 本案展示了一系列跨越不同风格边界的室内空间设计。从致敬古典比例的挑高大厅,到融合现代工业感的山间寓所,我们的核心设计理念始终围绕着“光、比例与材质”的和谐共生。通过对空间动线的深度考量,为居者创造出具有仪式感且不失温润触感的精神原乡。 This project presents a collection of interior spaces that transcend stylistic boundaries. From high-ceilinged grand halls honoring classical proportions to mountain retreats infused with modern industrial flair, our core design philosophy consistently revolves around the harmonious coexistence of light, proportion, and material. Through deep consideration of spatial flow, we create spiritual sanctuaries for dwellers that are both ceremonial and warmly tactile. Design Highlights // 设计亮点 Classical Symmetery & Elegance | 古典对称与优雅 在宏大的主客厅设计中,我们采用了严谨的轴线对称布局。高耸的石材壁炉、拱形立窗与层叠的法式水晶吊灯相互呼应,在明亮的奶油色调基底上构建出一种永恒的奢华秩序感。 In the design of the grand main living room, we employed a rigorous axial symmetry layout. The soaring stone fireplace, arched windows, and tiered French crystal chandeliers harmonize to build a timeless sense of luxury and order upon a bright, cream-toned foundation. Contemporary Nature Integration | 现代与自然的共生 通过大面积黑框玻璃立面的运用,室内空间被最大限度地向景观开放。在夕阳余晖下,大地色系的家具与通透的落地窗模糊了内外边界,让自然光影成为室内最核心的装饰元素。 Through the use of expansive black-framed glass facades, the interior space is opened to the landscape to the greatest extent. Under the sunset glow, earth-toned furniture and transparent floor-to-ceiling windows blur the boundaries between inside and out, making natural light and shadow the central decorative elements. Material Contrast in Modern Living | 现代生活的材质对比 在具有度假感的生活空间中,我们尝试了粗犷与细腻的对比:外露的木质斜屋顶梁架、混凝土质感的壁炉立柱,与精致的金属吊灯及现代软装形成张力,重新定义了“现代轻工业风”的舒适尺度。 In vacation-inspired living spaces, we experimented with the contrast between raw and refined: exposed wooden pitched roof beams and concrete-textured fireplace pillars create tension with delicate metal chandeliers and modern furnishings, redefining the comfort scale of "modern light industrial style". Summary // 结语 每一处细节的设计,都是为了在宏大的空间尺度中寻找属于人的温度。我们通过对材质球的精确控制与灯光的场景化应用,致力于打破虚拟与现实的界限,呈现极具沉浸感的居住美学。 Every detail is designed to find human warmth within grand spatial scales. Through precise control of material shaders and the scenographic application of lighting, we strive to break the boundaries between the virtual and reality, presenting an immersive living aesthetic.










